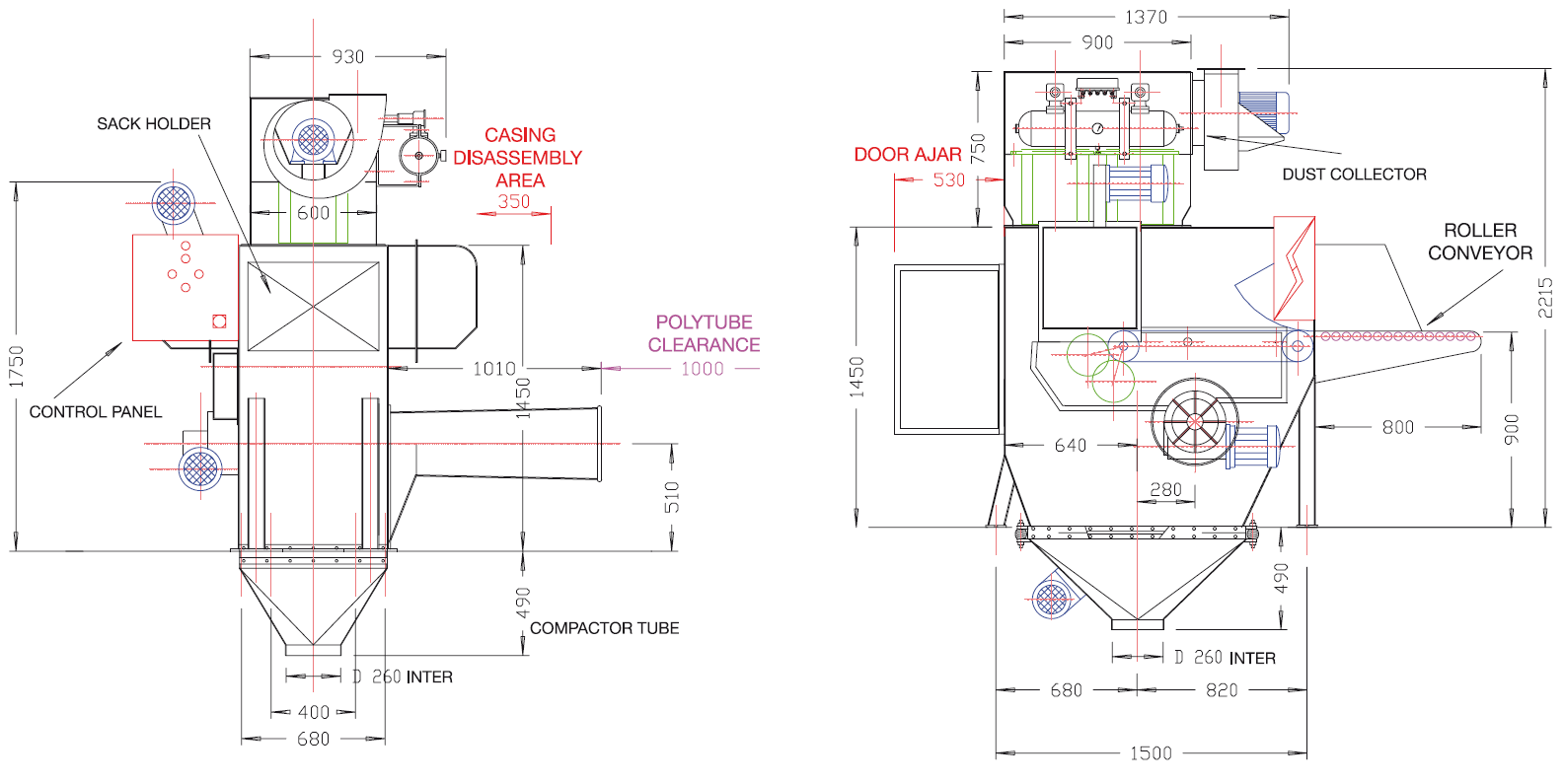
automatic sacks opening unit dimensions

automatic sacks opening unit dimensions

Желаете оптимизировать производственный процесс?

Мы предлагаем решения под заказ

Связь с нами